
地址:河南省周口市川匯區銀珠大道周口一高南100米
手機:13033969998
熱線:0394-8595585
信箱:455329348@qq.com
網址:m.dongyedatuo.cn
100噸水泥罐是儲存糧食水泥等物料的重要設備,大家在購買水泥罐的時候也要到正規的生產廠家購買。專業生產水泥罐的廠家都有設計圖紙,按照圖紙生產制造水泥罐,以免出現任何偏差。
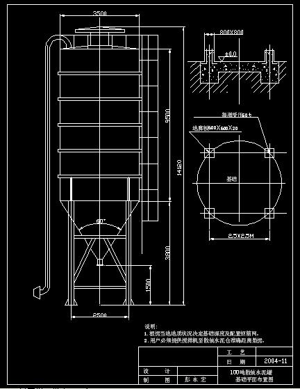
100噸水泥罐是應用較多的一種型號,錦榮倉儲100噸水泥罐定制尺寸:

100噸水泥罐定制圖紙:

水泥罐生產現場:

昨天河北李經理訂購了一臺100噸水泥罐,他一開始想要在當地購買一個,結果在網上看到我們錦榮倉儲設備的網站,就進來看了我們的產品,看到我們生產的正好有他需要的100噸水泥罐,而且產品質量是很有保障的,于是李經理撥通了我們的銷售熱線13033969998,他經過對比發現,我們的水泥罐是性價比最高的,最后決定到廠里看了一下并最終定制了1臺100噸水泥罐。

我廠的水泥罐廠里直接發貨,中間省去很多費用,質量優價格低,100噸水泥倉廠家哪家性價比更高?最新水泥罐價格歡迎咨詢13033969998